À Vendre

739 000 $

231 Av. des Explorateurs , Gatineau (Aylmer), QC J9J1M2

Isolé 4 Chambres à coucher 2 Salles de bain 1 Salle de bains partielle

Remarques

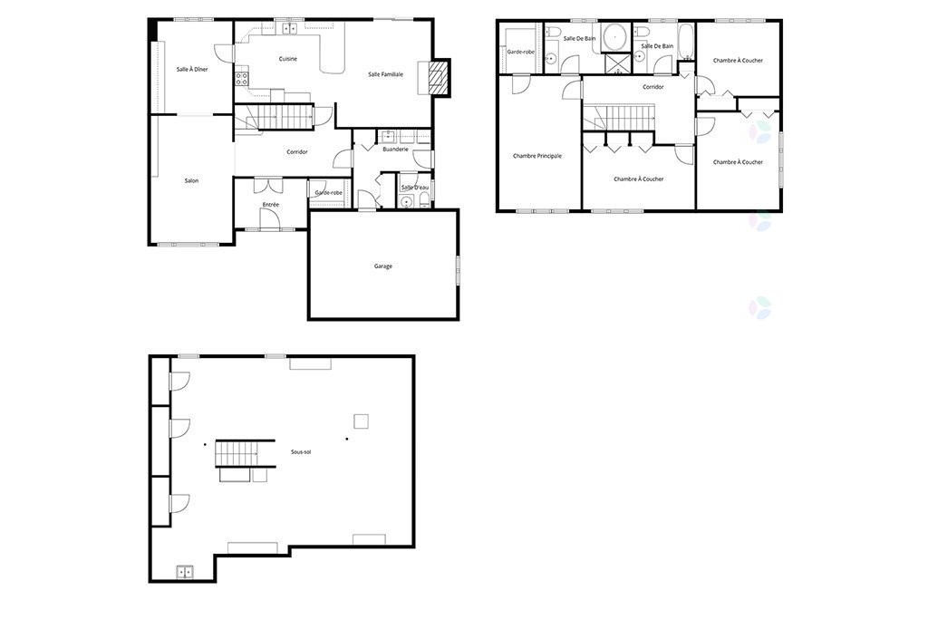
Magnifique propriété à deux étages, impeccablement entretenue, offrant plus de 2 000 pi² d'espace habitable. Elle comprend 4 chambres et 2 salles de bain complètes ainsi qu'une salle d'eau. Aire ouverte avec cuisine et salle familiale agrémentée d'un foyer au bois, salon et salle à manger distincts. Salle de lavage indépendante. Aucun tapis : planchers de bois franc et céramique. Spacieuse chambre principale avec walk-in et salle de bain attenante. Cour arrière clôturée, intime et superbement aménagée, idéale pour recevoir. Garage double attaché. Prêt de tout les services.

Rénovations et améliorations (en ordre chronologique) :
*Toiture -- 2008
*Portes-patio -- 2012
*Système d'irrigation -- ±2012
*Fenêtres -- 2013
*Porte de garage -- 2015
*Climatisation centrale -- 2015
*Chauffe-eau -- 2017
*Fournaise -- 2021
*Réservoir à mazout -- 2021
*Nouveau certificat de localisation -- 2025

Caractéristiques additionnelles :
*Située à proximité de tous les services
*Cour arrière privée
*Sous-sol non aménagé offrant un excellent potentiel pour l'ajout d'espace habitable
*Garage double
*Propriété très bien entretenue

Inclusions : 

Intérieur: Lustres, stores, Rideaux, Lave Vaiselle, Table dans cuisine,Fournaise, Chauffe Eau, aspirateur central,systeme d'alarme (sans service), ouvre porte garage (manette), trois (3) ateliers situés au sous-sol. Extéieur: Remise, Gazebo, Tables & chaises, balancoire

Exclusions : 

Chaise dans la cuisine, service du système d'alarme.

Résumé de la propriété

  • Voisinage : La Seigneurie, Glenwood
  • Style de bâtiment : Isolé
  • Évaluation du terrain : 226 600,00 $
  • Évaluation de l'immeuble : 488 500,00 $
  • Évaluation totale : 715 100,00 $
  • Année d'évaluation : 2022
  • Taxes municipales : 5 377,00 $
  • Taxe scolaire : 497,00 $
  • Taxes annuelles totales : 5 874,00 $ (2025)
  • Largeur du terrain en façade : 18.29 Mètre
  • Profondeur du terrain : 36.67 Mètre
  • Dimensions du terrain : 670.3 Mètres carrés
  • Largeur du bâtiment 10.14 Mètre
  • Profondeur du bâtiment 12.32 Mètre
  • Nbre d'espaces de stationnement : 4
  • Superficie habitable (approx): 208.3 Mètres carrés
  • Bâti en : 1988
  • Chambres : 4
  • Salle(s) de bains (complète(s)) : 2
  • Salle(s) de bains partielle(s) : 1
  • Zonage : Residential

Caractéristiques du bâtiment :

  • Sous-sol:
    Non aménagé
  • Bathroom Features:
    Salle de bains attenante à la CCP , Douche indépendante
  • Murs mitoyens:
    Isolé (détaché)
  • Matériaux de construction:
    Brique
  • Refroidissement:
    Climatiseur central
  • Caractéristiques de l'extérieur:
    Cour privée
  • Clôture:
    Clôturé
  • Caractéristiques du foyer:
    Foyer au bois
  • Type de fondations:
    Béton coulé
  • Chauffage:
    Air soufflé (pulsé) , Mazout
  • Kitchen Cabinet Features:
    Bois
  • Étages:
    À étages
  • Caractéristiques du terrain:
    Autoroute , Garderie/CPE , Parc , École primaire , École secondaire , Transport en commun , Paysager , Plat
  • Parking Features:
    Asphalte , Attaché , Attenant , Double largeur ou plus , Ouvre-porte électrique (garage)
  • Caractéristiques de la sécurité:
    Système d'alarme
  • Égout:
    Municipalité
  • Services publics:
    Eau raccordée , Égout raccordé
  • Source d'eau:
    Municipalité
  • Caractéristiques des fenêtres:
    PVC , Manivelle (battant)

Pièces

  • Hall d'entrée/Vestibule:
    Niveau : Rez-de-chaussée 3.00 m x 2.13 m
    Plancher : Céramique
    Porte Francaise,Walk in
  • Salon:
    Niveau : Rez-de-chaussée 5.49 m x 3.35 m
    Plancher : Bois
  • Salle à dîner:
    Niveau : Rez-de-chaussée 3.35 m x 3.66 m
    Plancher : Bois
  • Cuisine:
    Niveau : Rez-de-chaussée 3.58 m x 3.66 m
    Plancher : Linoléum
  • Chambre de famille:
    Niveau : Rez-de-chaussée 4.06 m x 4.27 m
    Plancher : Céramique
    Foyer Bois/Acces Garage
  • Salle de lavage:
    Niveau : Rez-de-chaussée 4.04 m x 1.85 m
    Plancher : Céramique
  • Salle d'eau:
    Niveau : Rez-de-chaussée 1.50 m x 1.45 m
    Plancher : Céramique
  • Chambre:
    Niveau : 2e niveau 3.33 m x 3.23 m
    Plancher : Bois
  • Salle de bains:
    Niveau : 2e niveau 2.54 m x 2.36 m
    Plancher : Céramique
  • Chambre:
    Niveau : 2e niveau 3.33 m x 3.94 m
    Plancher : Bois
  • Chambre:
    Niveau : 2e niveau 4.83 m x 2.59 m
    Plancher : Bois
  • Chambre:
    Niveau : 2e niveau 3.48 m x 5.51 m
    Plancher : Bois
    Walk in 6.5 x8
  • Salle de bains:
    Niveau : 2e niveau 3.66 m x 2.36 m
    Plancher : Bois
    Bain & Douche
  • Atelier:
    Niveau : Sous-sol 7.39 m x 4.39 m
    Plancher : Béton

Unités à revenue

  • Pièces : 14 Nombre de chambres : 4 Nombre salles de bain : 3 Revenu mensuel potentiel : 0,00 $
Style de vie
Information du quartier
Agent

Claire Gauthier

Courtier Immobilier

Téléphone : 819.684.4000

Cellulaire : 613.292.8267

Télécopieur à la maison : 819.684.2432

Agent

Alisha Gauthier

Courtier immobilier résidentiel

Téléphone : 819.561.0223

Cellulaire : 819.431.0677

Obtenir plus de renseignements